C.E.I.P. 6+12 en Quintana de la Serena
Nuestro estudio, en UTE con Francisco Javier Robustillo Yagüe, ha resultado ganador del Concurso de Arquitectura para la construcción del nuevo Colegio de Educación Infantil y Primaria, en Quintana de la Serena (Badajoz), con 6 módulos para infantil, 12 para primaria, comedor, biblioteca y pabellón deportivo.
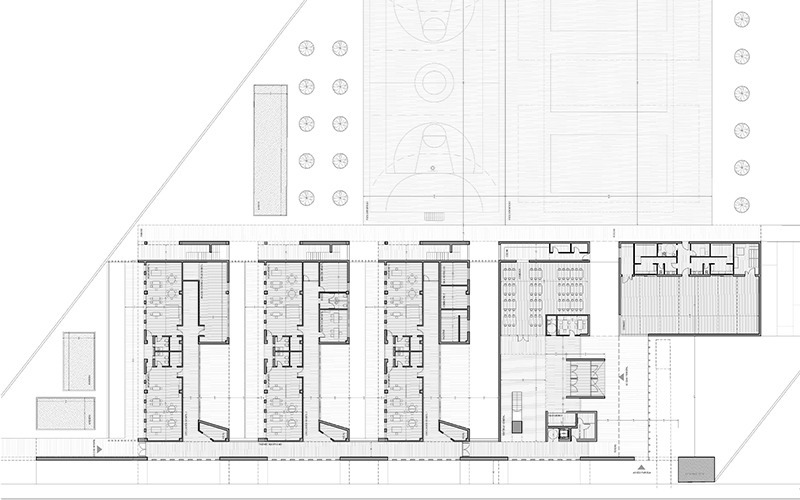
La situación del centro en el solar se realiza de tal modo que los volúmenes construidos en la parcela configuran la fachada del vial de reciente urbanización por el que se accede al solar. El acceso, se sitúa en el ángulo suroeste de la parcela, diseñándose un espacio libre a modo de plaza, que permite gestionar la afluencia del alumnado en las horas de apertura y cierre del centro.
La orientación de los aularios, tanto de infantil como de primaria, es hacia norte-noroeste, permitiendo que las aulas posean una “iluminación natural” óptima. Sólo las aulas de desdoble se orientan al sur – sureste, si bien se ha diseñado un sistema de “fachada parasoles” que permite que los vanos de estas aulas se controlen de forma que la iluminación sea la más conveniente.
Por otra parte, se ha tenido especial cuidado en los vanos que permiten la iluminación y ventilación de las aulas; puesto que se pretende evitar que la contaminación acústica y movimientos desde los viales o los propiciados por el uso de pistas deportivas provoquen interferencias o distracción en la atención de los alumnos en horario docente.
El programa del centro se ha compuesto mediante “bandas de usos” independientes: área de profesorado y personal no docente, educación infantil y educación primaria. Las aulas de infantil se disponen todas en planta baja. El aulario de primaria se distribuye en primera. En la planta baja, en el ámbito de articulación entre el área de infantil y primaria, se han dispuesto los usos comunes para ambos, como el comedor y el de personal no docente.
En cuanto a las circulaciones, se ha evitado mediante el diseño del centro, que se sucedan conflictos entre los desplazamientos de los alumnos de infantil y primaria, de tal modo que el acceso a las áreas de uso común se realice siempre mediante itinerarios independientes. Se ha posibilitado que las áreas de profesores sean independientes de los módulos de aularios, si bien estos sean fácilmente accesibles desde aquellos.
Para facilitar el uso flexible del centro, en cuanto a la actividad que se produzca en horarios extraescolares, el gimnasio y el comedor se han ubicado de tal forma que se permite su uso y acceso independiente del resto del aulario, en horarios extraescolares. De este modo también se permite el acceso directo a las pistas deportivas, en todos los casos, impidiendo el acceso al resto del centro.
