Obras y proyectos
socios
contacto
noticias/blog
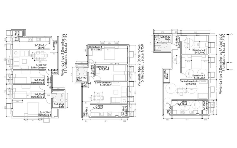
Concurso para 49 viviendas protegidas en PERI 1 Pescadería.
Fecha: 2011
✪
Cerrar
Redimensionar imagen
A-
A+
Navegación con el teclado
Fuente legible
Contraste
Elegir color
negro
blanco
verde
azul
rojo
naranja
amarillo
azul
Subrayar enlaces
Resaltar enlaces
Vaciar cookies
Imágenes en escala de grises
Invertir colores
Quitar animaciones
Quitar estilos
Cerrar
Accessibility by WAH
Inicio
año
2016/actualidad
aviso legal
categoría
administrativo
asistencial
cultural
diseño interior
concursos
conferencias
contacto
espacios públicos
estudio
equipo
perfil
exposiciones
labor docente
localización
andalucía
huelva
sevilla
extremadura
badajoz
cáceres
mapa proyectos realizados
mobiliario
noticias/blog
obras y proyectos
Obras y proyectos
otros méritos
otros proyectos
Política de privacidad
premios
publicaciones
publicaciones digitales
rehabilitación
residencial
Sample Page
servicios
socios
urbanismo
viajes de arquitectura