Reforma de local para Centro Social
El proyecto Reforma de local para Centro Social en Huelva fue ejecutado en 2013 por TRAX SLP en colaboración con la Fundación Andaluza para la Integración Social del Enfermo Mental (FAISEM). Su objetivo fue adaptar un local en planta baja de un edificio residencial para convertirlo en un Centro de Día destinado a personas con enfermedad mental, promoviendo su autonomía, integración y participación social.
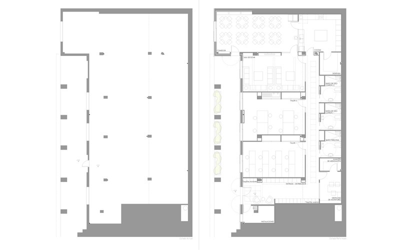
🏢 Descripción del Proyecto
El local se encuentra en la planta baja de un edificio de viviendas, empotrado contra un talud natural del terreno. La parte trasera del local es un muro de contención, lo que limita la posibilidad de disponer de luz o ventilación natural en ese frente. La fachada es de ladrillo visto, y el interior del local se encontraba en bruto, aunque la fachada al soportal estaba acabada.
La intervención consistió en la adaptación del espacio para albergar las siguientes estancias:
-
Zona de acceso y espera con taquillas para usuarios.
-
Dos talleres de uso polivalente, uno de ellos equipado como aula de informática.
-
Salón de estancia y descanso.
-
Aseos para usuarios que permitan su completo aseo personal.
-
Despacho de monitores junto a la entrada.
-
Vestuario y aseo de personal.
-
Comedor, cocina, despensa y almacén.
🌿 Estrategias de Sostenibilidad
Dado que la intervención fue de pequeña entidad, se aprovecharon las características intrínsecas del local para implementar criterios de sostenibilidad:
-
Muros exteriores delanteros aislados térmicamente y protegidos de la radiación directa por el porche delantero.
-
Zona trasera en contacto con el terreno mediante un muro de contención de hormigón armado, proporcionando gran inercia térmica.
-
Pequeña relación entre la superficie de huecos y paños macizos en todo el perímetro del local.
-
Altura y ventilaciones cruzadas en las estancias principales.
Además, se incorporaron mejoras como nuevos aislamientos exteriores con lana de roca, iluminación eficiente mediante fluorescentes de alto rendimiento y LEDs, y equipos de climatización y ventilación con recuperadores entálpicos.
