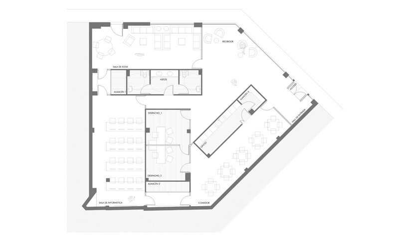
por JARP | Jul 20, 2020 | 2016/Actualidad, administración, andalucía, concursos, córdoba
Concurso para INSS en Lucena (Córdoba) Lucena (Córdoba). 2020 Promotor: Instituto Nacional de la Seguridad Social – Dirección Provincial de Córdoba. Proyecto Mejor Valorado en Concurso Abierto [slideshow_deploy id=’5001′] El edificio se encuentra en...
por JARP | Sep 1, 2014 | 2010/15, año, asistencial, categoría, córdoba, localización, obras y proyectos, residencial
Residencia y Centro Social Córdoba · 2010 Promotor: F.A.I.S.E.M [slideshow_deploy id=’677′] El edificio se encuentra en una zona de expansión de la ciudad de Córdoba, sobre un solar de forma trapezoidal con una superficie de 3670,65 m2 y de sus cuatro...
por JARP | Sep 1, 2014 | 1985/89, 1990/94, año, badajoz, categoría, córdoba, diseño interior, localización, mobiliario, obras y proyectos, otras, sevilla
Nueva Imagen Comercial, Mobiliario y Tiendas para la Franquicia El Caballo Sevilla-Madrid-Badajoz-Utrera (Sevilla)-Córdoba-La Coruña-Cartagena (Murcia) · 1987-1993 Promotor: Franquicia El Caballo En colaboración con Pedro Rodríguez de Pineda [slideshow_deploy...
por JARP | Sep 1, 2014 | 2005/09, año, córdoba, localización, obras y proyectos, urbanismo
Urbanización Monturque (Córdoba). 2006 Promotor: Melcorigen S.A [slideshow_deploy id=’2003′]
por JARP | Sep 1, 2014 | 2005/09, año, categoría, córdoba, localización, obras y proyectos, rehabilitación, residencial
Centro Social en C/ Platero Leiva Córdoba· 2008 Promotor: F.A.I.S.E.M [slideshow_deploy id=’2088′] El local donde se ubica el Centro Social objeto de este documento se encuentra en un edificio, construido en 1988, delimitado por las calles Pasaje Platero...
por JARP | Sep 1, 2014 | 1985/89, 1990/94, año, categoría, córdoba, localización, mobiliario, obras y proyectos, otras, sevilla
Mobiliario para las franquicias de El Caballo Dimensiones: 200 x 60 x 90 cm SEVILLA – MADRID – BADAJOZ – UTRERA (Sevilla) – CÓRDOBA – LA CORUÑA – CARTAGENA (Murcia) – SEVILLA. SHOW-ROOM. 1987-1993 En colaboración con D. Pedro...